施工事例・詳細

O様邸 マンション フルリノベーション
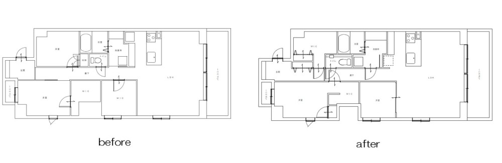
築10年未満の分譲マンション。築浅にてとてもきれいなお部屋でしたが、オーナー様のセンスとこだわりでとてもラグジュアリー&モダンな空間に生まれ変わりました。壁や床の随所に本物のタイルをあしらい、建具もスタイリッシュに。土間部分を拡張して靴のまま入れる大容量のWICも新設しました♪

エントランス

土間部分を拡張
左手前にあった洋室をWICに変更し、廊下側はシューズクロークに。WICの床にもタイルを施工し、靴のままWICに入れるようにしました。
LDK



LDKのレイアウトは大幅には変わっていませんが、冷蔵庫の設置場所を奥から手前に変更したことで、食品の出し入れがスムーズに。また、廊下側に入口があったWICを洋室に変更したことに伴い、入口をリビング側に設置しました。黒いガラスの引戸がとてもクールで、キッチンや壁&床の内装材ともマッチしていて素敵な空間に仕上がりました。
洋室

こちらのお部屋は元々WICが備わっていたのですが、少しレイアウトを変更して居室部分と収納スペースに繋がりを持たせました。
WIC


こちらが玄関から入ってすぐ左手の洋室を改修したWICです。収納量も充分あり、床にはオーナー様が一生懸命選ばれたタイルを施工。「ロックソルト」という名称も素敵です♪ ショップのようにお気に入りの洋服を並べて、毎日の身支度が楽しくなると嬉しいです。
バス・トイレ


バス・トイレもラグジュアリーで落ち着いた雰囲気に生まれ変わりました♪











