施工事例・詳細

賃貸マンション 空き室リノベーション(南塚口8 その②)
以前ご紹介させていただきました賃貸マンションの別室が空き、オーナー様より再度リフォームのご依頼をいただきました。
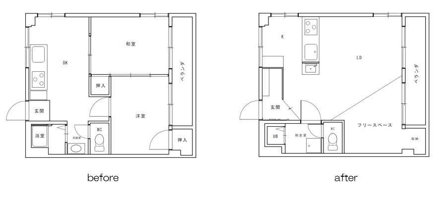
beforeの間取りは前回のお部屋と同じ2DK(一度リフォームされていて1室は和→洋に)ですが、afterはレイアウトも雰囲気もまた違う感じに仕上がっています♪
間取り

エントランス


ドアを開けてすぐ左手に土間収納を設けました。靴以外にもスーツケースやアウトドア用品等、いろいろ置いていただけます♪
キッチン

キッチンはペニンシュラ型のオープンに。
こちらは造作で、業務用のようなシンプルなシンクながら、エイジング加工でクールかつ渋い雰囲気に仕上がりました。天井はあえてスケルトンの格子を入れて配管を見せています。
※キッチンが下がり天井になっているお部屋は、配管を通す目的でもありながら、その部分だけクロスを変えることでデザインとしても活かされます♪
LD・プライベートスペース


各部屋の壁を撤去して広々開放的な空間になりました♪
床は真鍮の見切り材を入れてLDスペースとプライベートスペースで異なる仕上げ材を使用し、さりげなくゾーニングの役割を果たしてくれています。
サニタリールーム


在来風呂を解体してシャワールームに変更しました。元々洗い場だったスペースは脱衣室&洗濯機置き場に。ドアも新設して安心空間に♪
(beforeに写っているドアはトイレのドアです…)











