施工事例・詳細

売物件 戸建て住宅リフォーム
築26年の3階建て住宅。弊社で内外装のリフォームをさせていただきました。
屋根・外壁の塗装および床・クロスの全面貼替え&設備も全て新品に入替えています♪
快適にお過ごしいただけるよう、丁寧に施工させていただきました。
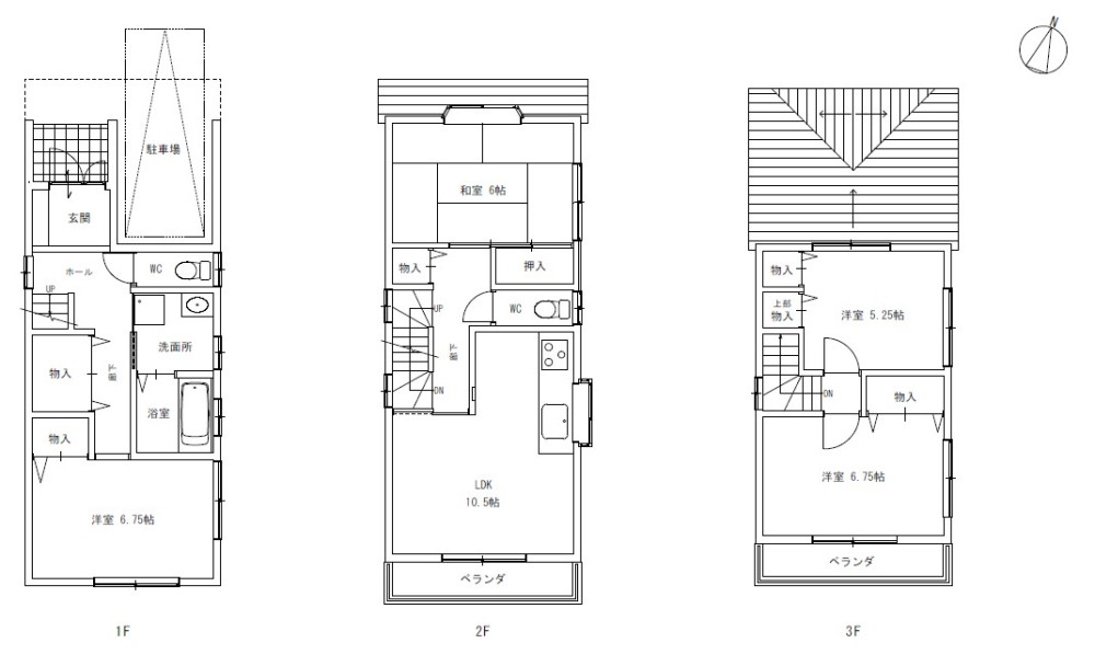
間取り

外観

屋根:ガルバリウム、外壁:サイディング
いずれも塗装により見た目がキレイになっただけでなく、塗膜の保護機能が蘇ったことで、建物の寿命を延ばす役割を果たしています。
玄関・ホール

フローリング・上がり框の貼替え & 下駄箱も新品に入れ替えました。
照明もシーリングからダウンライトに変更。小さなことですが、すっきりとした印象に♪
洗面・浴室


シンプルで清潔感あふれる空間にしました。
トイレ

こちらもシンプルにまとめていますが、1Fと2Fで床&天井クロスを変えてみました♪
LDK


LDKはほんの少しアクセントクロスを入れて表情を変えてみました。
キッチンにはマグネットパネルを採用、調理道具など便利にお使いいただけると嬉しいです♪
また、キッチン背面のインターホン&リモコン設置箇所には壁を少し凹ませた「ニッチ」を作りました。
1F洋室

3F洋室

各お部屋に十分な収納量のクローゼットが完備されています。
また、1F階段下・2階廊下にも収納スペースがありますので、季節用品や掃除道具などもたっぷり収納していただけます♪

2F和室

真壁の良さはそのままに、趣ある深緑の壁から明るめの和風クロスに変更。天井も木目柄のクロスで和のテイストを大切に残しました♪











