施工事例・詳細

K様邸 スケルトンリノベーション
築45年の分譲マンションを一度スケルトンの状態にして間取りや家事動線を見直し、住空間を一から作り直しました。オリジナルの造作家具や様々な収納アイデア等を盛り込み、お客様の思いが沢山つまった素敵な空間に仕上がりました♪また、一度スケルトン状態にすることで断熱材の施工も容易にでき、省エネ設備の導入と併せて年中快適にお過ごしいただけるよう対策を施しました♪

(解体後~の様子)

エントランス

土間部分を拡大し、シューズBOX・ベンチ・収納棚&傘かけを造作。
お出かけ前の準備や帰宅後の荷物置きetc.、デザインはもちろん、機能性にもこだわりました。
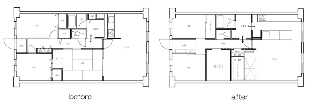
和室→WIC&プライベートルーム&リビングの拡大


お客様のご要望を叶えるべく、収納スペースの拡大、プライベート空間の確保を実現。
また、プライベート空間は小上がりになっていて、その下に収納できるベッドを造作。ドレッサー兼ワークデスクも設けて、2人分の空間を確保しながらリビングも拡大することができました。

↑ 収納式ベッド:お休みになるときはバーチカルブラインドで空間を仕切ることができます。
LDK

キッチン&背面のキャビネットやTVボードも全て造作。TVボードは壁付けのフロートタイプにして、よりオシャレな空間を演出。統一感のあるインテリアでゆったりくつろげる空間に仕上がりました。
洋室1

洋室2

こちらの2室はお子様用に。デスクやベッドも全て造作、またデスク前の壁面には有孔ボードを施工しました。
フックを使って小物をかけたり自由に棚を付けたり…お子様自身のアイデアで色々活用していただけたら嬉しいです♪
洗面室

元々は廊下からしか入れなかった洗面室を、2WAYでキッチンからもアクセスできるようにしました。
家事の時短につながります♪
浴室・トイレ

浴室・トイレは一度リフォームをされていてとてもキレイでしたが、設備を一新、またキャビネットetc.もテイストを統一してより洗練された空間になりました♪











